LOGIN
lOGIN
SANGMYUNGHUMAN CENTER
041.936.9620
숙박시설안내 : 대천수련원(상운관)
사용요금
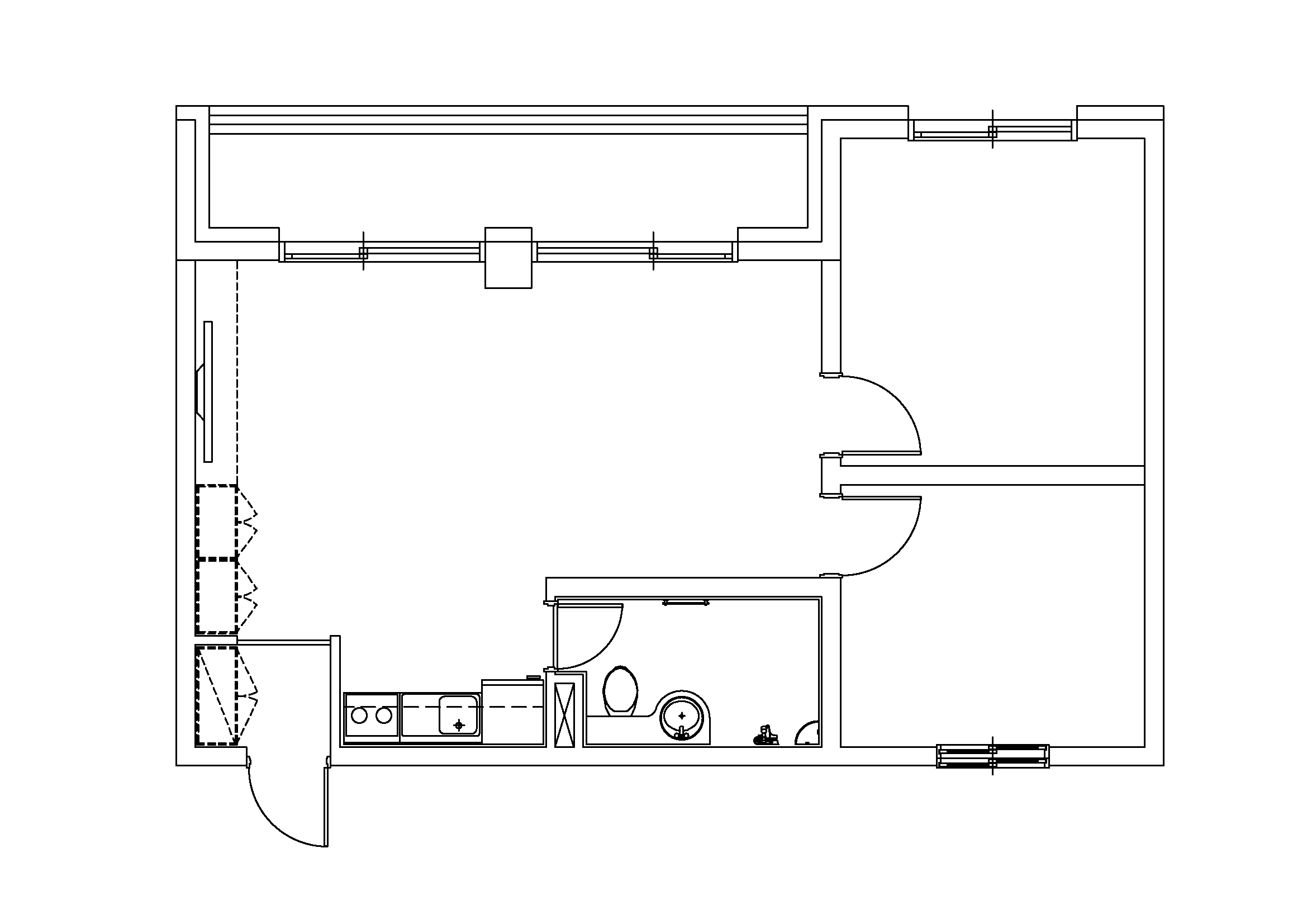
평면도 보기
숙박시설안내
A타입(바다전망-다락방있음-8실) : 대천수련원(상운관) 5~8인실 평면도
B타입(산 전망-다락방없음-2실) : 대천수련원(상운관) 5~8인실 평면도
이 사이트는 자바스크립트를 지원하지 않으면 정상적으로 보이지 않을수 있습니다.